BELLA
Overview
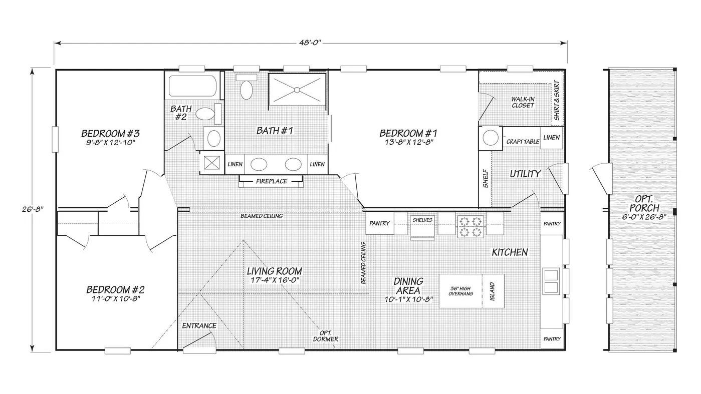
Floor Plan
- IN STOCK
- NEW ARRIVAL
Bella
BEFORE OPTIONS
3 beds
2 baths
1,344 sq. ft.
† Images may show options not included in base price
Overview
DRYWALL 2X6
Floor Plan

We accept trades!
Find a new home you love? Contact us for more information about our trade-in requirements and to schedule your free trade evaluation.
Learn More